00件
最近見た物件
00件
検討リスト
ファンルーム > (店舗(賃貸))路線・駅から探す > 広島電鉄広島電鉄江波線 > 舟入町駅 > 中友ビル
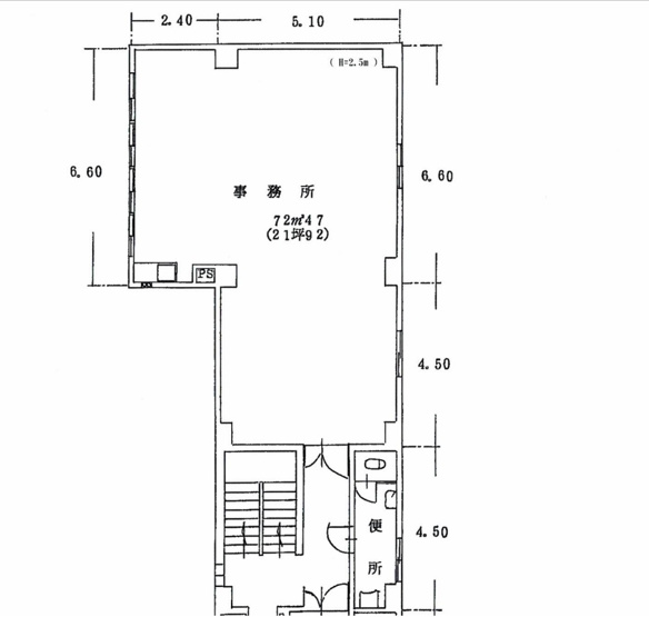
多くの方からご好評頂いている中友ビルのご紹介です。歩いて253mのところに広島舟入町郵便局があります。この物件は月14.4672万円と、グレードの高い物件となっております。駅まで歩いてアクセスできる、徒歩4分の距離に立地する物件です。オフィスとしてもご利用いただける物件です。エアコンが設置されている物件です。

| 所在地 | 広島県広島市中区上八丁堀7-8 | ||
|---|---|---|---|
| 交通 | |||
| 坪数(面積) | 21.92坪(72.47㎡) | ||
| 賃料/坪単価 | 14.4672万円/0.66万円 | 管理費・共益費 | 43,395円 |
| 敷金/礼金/保証金 | 3ヶ月/0ヶ月/- | 償却/敷引 | -/- |
| 更新料 | - | 権利金/雑費 | -/- |
| 造作譲渡金 | - | 駐車場/月額料金 | 無/- |
| 保険加入/料金 | 有/- | 保険名/保険期間 | -/- |
| 保証人代行義務 | - | 保証会社 | - |
| 保証会社詳細 | - | 向き | - |
| 築年月(築年数) | 1972年 5月 (築53年) | 契約期間 | 3年 |
| 種別/構造 | 店舗事務所/鉄筋コンクリート | 用途地域 | - |
| 部屋/所在階/階建 | 302/2階/5階建 地下1階 | 総戸数 | - |
| 現況/引渡時期 | 空家/相談 | 取引態様 | 一般媒介 |
| 物件番号 | 75392871 | 取引条件の有効期限 | 2025年11月10日 |
| 設備条件 |
|
||
| 備考 | ◆水道料金は共益費に含まれます。 | ||
| 取扱会社 |
|
||
| QRコード |
このQRコードを読み取ることで、スマホでも物件情報を確認できます。 |
||
※地図上に表示される物件の位置は付近住所に所在することを表すものであり、実際の物件所在地とは異なる場合がございます。